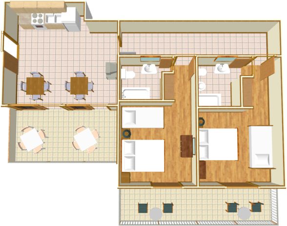
1: A4+2 - apartment for 4-6 persons :: Appartement für 4-6 Personen








1. floor / 1. Stock








1. floor / 1. Stock